Ny milepæl for tryggheten i Engerdal: Bygger nytt beredskapssenter

Engerdal tar et stort steg for både trygghet og beredskap. Kommunestyret har nå vedtatt å bygge et helt nytt brann- og beredskapssenter på Drevsjø – et løft som vil komme både innbyggere og nødetater til gode i mange år framover.

Det nye senteret, som får navnet Engerdal brann- og beredskapssenter, skal bygges som et moderne nybygg på industriområdet på Drevsjø. Vedtaket ble gjort etter en grundig prosess der både behov, kostnader og fremtidig beredskap er nøye vurdert.

AI-generert: Engerdal Brann- og beredskapssenter ChatGPT

Bedre beredskap – og tryggere hverdag

Bakgrunnen for satsingen er tydelig: Dagens brannstasjon holder ikke lenger mål. Bygget fra 1990-tallet har utfordringer knyttet til arbeidsmiljø, kapasitet og funksjonalitet, og oppfyller ikke dagens krav til verken brannvesen eller sivilforsvar.

Med det nye senteret får man:

  • bedre plass til moderne utstyr og kjøretøy
  • tydelig skille mellom rene og urene soner
  • bedre garderobe- og arbeidsforhold
  • gode fasiliteter for øving, opplæring og samarbeid

Dette gir ikke bare bedre arbeidsforhold for mannskapene – det styrker også beredskapen for hele kommunen.

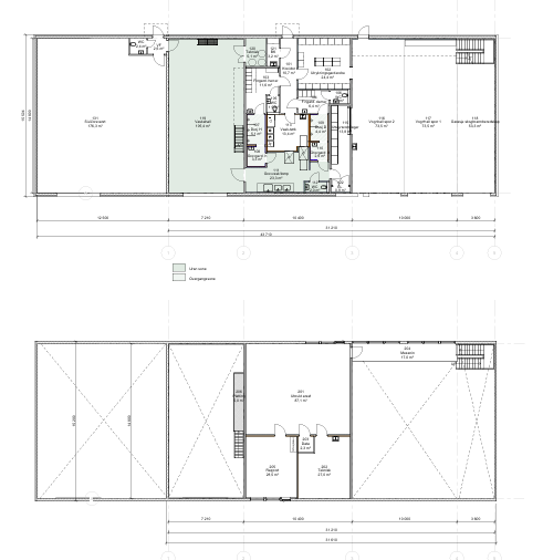
Skisse innvendig Engerdal Brann- og beredskapssenter Norconsult

Samler kreftene

En viktig del av prosjektet er samlokalisering av brannvesen og sivilforsvar. Det gir bedre samarbeid, raskere respons og mer effektiv håndtering av hendelser.

Det nye bygget er planlagt med tanke på fremtiden, med fleksible løsninger som kan tilpasses nye behov, enten det gjelder utstyr, bemanning eller krav til beredskap.

Trygg utrykning

Plasseringen på industriområdet gir også en viktig fordel: tryggere og mer effektiv utrykning. Her vil utrykningskjøretøy kunne komme seg raskt ut på fylkesveien, uten å måtte kjøre gjennom områder med mye myke trafikanter.

Samtidig vil responstiden til viktige institusjoner fortsatt være godt innenfor kravene.

Satser for framtida

Selv om et nybygg koster noe mer enn å bygge om det gamle, peker kommunen på at dette er den mest lønnsomme løsningen over tid. Lavere vedlikeholdskostnader, bedre energieffektivitet og større fleksibilitet gjør investeringen fremtidsrettet. Vedtaket markerer en tydelig satsing på trygghet og beredskap i Engerdal. Med nytt beredskapssenter legger kommunen til rette for både bedre arbeidsforhold for mannskapene – og økt sikkerhet og trygghet for alle som bor og ferdes i kommunen både i dag og i årene som kommer.